265 m² Praxisfläche in Alt-Friedrichsfelde direkt an der B1 provisionsfrei mieten!
Bei der Immobilie handelt es sich um ein 16-geschossiges Wohn- und Geschäftsgebäude, wel-ches 1997 auf einem ca. 38.152 m² großem Grundstück erstellt wurde. Im Erdgeschoss und im 1. Obergeschoss befinden sich Gewerbe- bzw. Büroflächen. Die oberen Geschosse werden wohnungswirtschaftlich genutzt. Darüber hinaus können Parkplätze der insgesamt ca. 200 Stell-plätze kostenpflichtig separat angemietet werden.
Mieter im Objekt sind derzeit eine Zahnarztpraxis, eine Praxis für Physiotherapie, Nahkauf, die Deutsche Post, eine große Kita, ein Fitnessstudio, ein Motorradgeschäft und weitere Dienstleis-tungsbranchen. Weitere Frequenzbringer in der näheren Umgebung sind u. a. McDonald’s, zwei Tankstellen, die Hochschule für Wirtschaft und Recht Berlin und das Schloss Friedrichsfelde. Zu-dem befindet sich der Tierpark Berlin dem Objekt gegenüber.
Im direkten Einzugsgebiet kann man derzeit von ca. 6.000 Einwohnern ausgehen. Die Anzahl der Einwohner im Umfeld ist durch die Wohnungsbauprojekte in direkter Nachbarschaft weiter stei-gend.
Die Verkehrsanbindung direkt an der B1 mit einer sehr guten Sichtbarkeit ist ebenfalls gegeben.
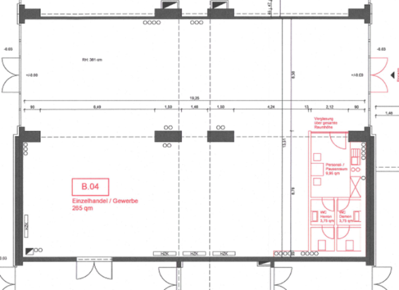
Die vakante Mietfläche mit ca. 265 m² liegt im Erdgeschoss und ist nach Vereinbarung verfügbar:
Die Gewerbefläche kann bei Bedarf auch mit einer weiteren Fläche von ca. 191 m² zusammenge-legt werden. Dies würde dann einer Gesamtmietfläche von ca. 456 m² ergeben
Das Objekt verfügt über 200 Stellplätze in der Tiefgarage. Ein direkter Zugang zur Tiefgarage ist über Aufzüge gegeben.
- Separate Anlieferungszone für Krankentransport
- Bodenbelag nach Abstimmung
- WC-Anlage
- Einbauküche
- Verfügbarkeit nach Abstimmung
Das Wohn- und Geschäftshaus befindet sich im Alt-Friedrichsfelder Viertel, im Bezirk Lichtenberg und gleichnamigen Ortsteil Lichtenberg, welcher rund 41.700 Einwohner zählt. Der Bezirk Lichten-berg ist ein traditioneller Wirtschaftsstandort mit gut erschlossenen Gewerbegebieten. Der Bezirk bietet eine solide Basis für Neuansiedlungen und Existenzgründungen. Die Wirtschaftsstruktur des Bezirkes ist von einer Vielzahl kleiner und mittlerer Unternehmen im Handel, Handwerk und im Dienstleistungsbereich geprägt. Darunter finden sich moderne und exportintensive Industrie- und Technologieunternehmen der Metallverarbeitung.
Das Friedrichsfelder Viertel profitiert vom nahen S-Bahnhof Friedrichsfelde-Ost, vor dem Objekt verkehren die Buslinien 192, 194 und 108, die das Viertel an die U- und Straßenbahn anbinden. Direkt am Objekt liegt die verkehrsreiche B 1/B 5 mit einer eigenen Abfahrt für das Viertel, die zu einem großzügigen Freiflächenparkplatz und der Tiefgarage führt. Täglich passieren ca. 100.000 Fahrzeuge das Friedrichsfelder Viertel. Das Ensemble verfügt über großen Werbeanlagen mit ausgezeichneter Sichtbarkeit zur B1. In unmittelbarer Nähe finden derzeit verschiedene Wohnbauprojekte statt, welche zu einer weiteren Erhöhung der Einwohnerzahl in unmittelbarer Umgebung führen werden.
Die Vermietung erfolgt provisionsfrei direkt über den Eigentümer.
Bei Fragen wenden Sie sich gern an den Vermieter Herrn Hilbrecht.










