Erweiterbare 194 m² Bürofläche im Logistikzentrum in Regensburg mieten!

Objektnummer
148836655

Das Logistikzentrum wurde 1993 auf einem ca. 40.404,00 m² großem Grundstück errichtet und besitzt eine Gesamtmietfläche von ca. 20.965,47 m². Zu dem Grundstück gehören zwei Hallen, welche als eingeschossige Stahlbetonfertigteilbauten auf Stahlbetonbodenplatten erbaut wurden. Die Verwaltungsgebäude sind drei- bis viergeschossige Ziegelbauten mit einer Blechverkleidung.

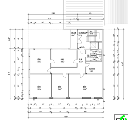
Bei der vakanten Mietfläche von ca. 194,00 m² handelt sich um die gesamte Etage im 3. Oberge-schoss eines der Verwaltungsgebäude. Bei Bedarf ist diese Mietfläche um die darunter liegende Etage im 2. Obergeschoss (ca. 345,00 m²) erweiterbar.
Die Vakanten Mietflächen stehen nach Vereinbarung zur Verfügung.

Beschreibung Innenausstattung

- Mietfläche 1: ca. 194,00 m² im gesamten 3. OG mit ca. 42,00 m² Nebenflächen bestehend aus Flur, Sanitärräumen und einer Teeküche
- Mietfläche 2: ca. 345,00 m² im gesamten 2. OG mit ca. 61,00 m² Nebenflächen bestehend aus Flur, Sanitärräumen und einer Teeküche
- Bodenbelag: Teppich/ Teppichfliesen in den Büroräumen und Fliesen in Teeküche und Sanitärräumen
- Odenwalddecke
- Mietflächen erreichbar durch Personenaufzug
- Ca.50 Parkplätze stehen kostenfrei der allgemeinen Nutzung zur Verfügung
- Alle Fenster sind mit Außenjalousien versehen

Beschreibung Lage

Regensburg ist eine kreisfreie Stadt mit rund 150.000 Einwohnern und liegt im Osten von Bayern. Ihre Altstadt mit Stadtamhof gehört seit 2006 zum UNESCO-Welterbe. Sie ist nach München, Nürnberg und Augsburg die viertgrößte Stadt des Freistaates Bayern. Regensburg hat drei Hoch-schulen und ist eines der 23 bayerischen Oberzentren. Außerdem verfügt sie über 1.500 denkmalgeschützte Gebäude und gilt als die größte mittelalterliche Stadtanlage nördlich der Alpen. Dadurch hat sich Regensburg zu einem sehr beliebten Tourismusziel entwickelt.

Wirtschaftlich ist die Stadt stark vom verarbeitenden Gewerbe (Automobilbau, Maschinenbau, Elektrotechnik, Mikroelektronik) geprägt und genießt dadurch eine niedrige Arbeitslosigkeit. Durch die Universität ist auch die Wissenschaft eine bedeutende Branche.

Der Standort liegt in einem etablierten Gewerbegebiet und ist verkehrstechnisch hervorragend durch die optimalen Nord-Süd- und West-Ost-Anbindungen an die Autobahnen A3 Frankfurt-Wien und A93 München-Berlin, sowie die A6 Richtung Pilsen-Prag erschlossen. Die Deutsche Bahn befährt die Strecke Nürnberg – Regensburg – Passau – Wien mit ICE-Zugpaaren im Zweistun-dentakt. Bis zur Eröffnung des Europakanals Rhein-Main-Donau 1992 war sie die Bahnstrecke mit dem höchsten Güteraufkommen. Der Bahnhof Regensburg-Burgweitening ist in ca. 300 m Ent-fernung fußläufig zu erreichen und der ÖPNV ist in unmittelbarer Nähe vorhanden. Die Flughäfen München und Nürnberg sind innerhalb einer Stunde erreichbar.

Im Logistikbereich sind vorwiegend Automobilzulieferer und Speziallageristen im näheren Umfeld ansässig.

Nähere Angaben zur Lagesituation entnehmen Sie bitte den beigefügten Lageplänen.

Zusätzliche Information

Haben wir Ihr Interesse geweckt? Wir freuen uns auf Ihren Anruf oder senden Sie uns einfach eine Kontaktanfrage. Wir beraten Sie gern!